Pièces:
1
Surface:
Chambres:
Salles de bain:
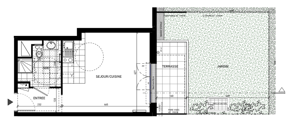
L’Agence de l’Empereur vous présente ce magnifique studio de 27,15 m2 au sein d’une résidence récente (2019) en location meublée avec terrasse et jardin d’environ 32 m2. Vous apprécierez son emplacement à deux pas des commerces : boulangerie, pharmacie, supermarché, coiffeur… l’enseigne Picard à 50 mètres, plusieurs restaurants, ainsi que les arrêts de bus au pied de la résidence, le 467 menant au RER A et le 141 à la Défense. Il se compose d’une entrée donnant accès à la pièce de vie de 19,45 m2 séjour/cuisine équipée séparée en partie par une verrière. Accès à la terrasse/jardin d’environ 32 m2 orienté Ouest. Une salle d’eau avec commodités et coin buanderie de 4,65 m2. Une place de parking en sous-sol.
Charges de 80 € incluses, comprenant la production d’eau chaude, le chauffage, l’eau froide ainsi que l’entretien général de la copropriété.
Disponible fin mars. Honoraires : 407,25 € TTC, Dépôt de garantie : 1 734 €.
Visite en vidéo 4K : https://www.youtube.com/embed/SHuR28rLGn0?si=uh8_B2Q8DnNY3eXq
TYPE BIEN: Studio
SURFACE HABITABLE: 27.15 m²
PARKING: 1
JARDIN: 1
TERRASSE: 1
ANNEE CONSTRUCTION: 2019
ASCENSEUR: OUI
MEUBLE: 1
TYPE CHAUFFAGE: ENERGIE_CHAUFF_GAZ_VILLE
ENERGIE CHAUFFAGE: GAZ_VILLE
FORMAT CHAUFFAGE: CHAUDIERE
SDE: 1
COPROPRIETE: NON 
VILLE: Rueil-Malmaison
Ce bien vous intéresse :
Contactez moi










