Pièces:
6
Surface:
Chambres:
4
Salles de bain:
1
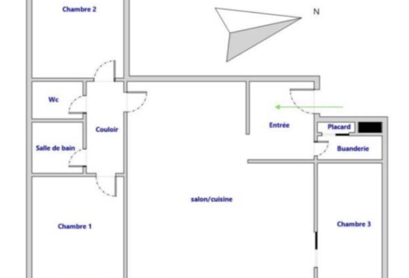
L’agence de l’Empereur vous présente ce rare appartement de 102 m2, en duplex au dernier étage, avec une superbe terrasse panoramique de 60 m2. L’entrée se fait par le niveau 1 de l’appartement, elle se prolonge vers le séjour/salle à manger de 28 m2 qui s’ouvre sur un grand balcon filant, tourné vers les jardins paysagers de la copropriété. La cuisine est aménagée au goût du jour, d’une belle surface de 11,30 m2 qui se prête aux déjeuners en famille. Deux chambres et une salle de bains, la possibilité d’une troisième chambre à ce niveau en gardant un simple séjour. Par un escalier en colimaçon, on accède au niveau supérieur, époustouflant de clarté, il offre un espace salon ou pièce de loisir ainsi qu’une chambre avec sa salle de douche,ouverts par de grandes baies vitrées sur la terrasse aménagée qui profite d’une vue imprenable, à pratiquement 380o. Pour un confort journalier, le bien possède un box en sous-sol et un parking, ainsi qu’une belle cave. Situé dans un quartier prisé de Rueil-Malmaison, à deux pas de très bons scolaires publics et privés (Pasteur, Charles Péguy, Jules Verne, Passy et Danielou), vous ne pourrez être que séduits par ce bien peu commun, d’exception. Commerces à proximité ainsi qu’un très bon maillage de bus.
Honoraires charge: vendeur
TYPE BIEN: Appartement
SURFACE HABITABLE: 102.22 m²
NB ETAGES: 3
PARKING: 1
TERRASSE: 1
ANNEE CONSTRUCTION: 1977
ASCENSEUR: OUI
TYPE CHAUFFAGE: ENERGIE_CHAUFF_GAZ_VILLE
ENERGIE CHAUFFAGE: GAZ_VILLE
FORMAT CHAUFFAGE: CHAUDIERE
SDB: 1
WC: 2
SDE: 1
COPROPRIETE: NON 
COPROPRIETE QUOTE PART: 5880 €
COPROPRIETE PLAN SAUVEGARDE: 0
VILLE: Rueil malmaison
Ce bien vous intéresse :
Contactez moi























































