Pièces:
4
Surface:
Chambres:
3
Salles de bain:
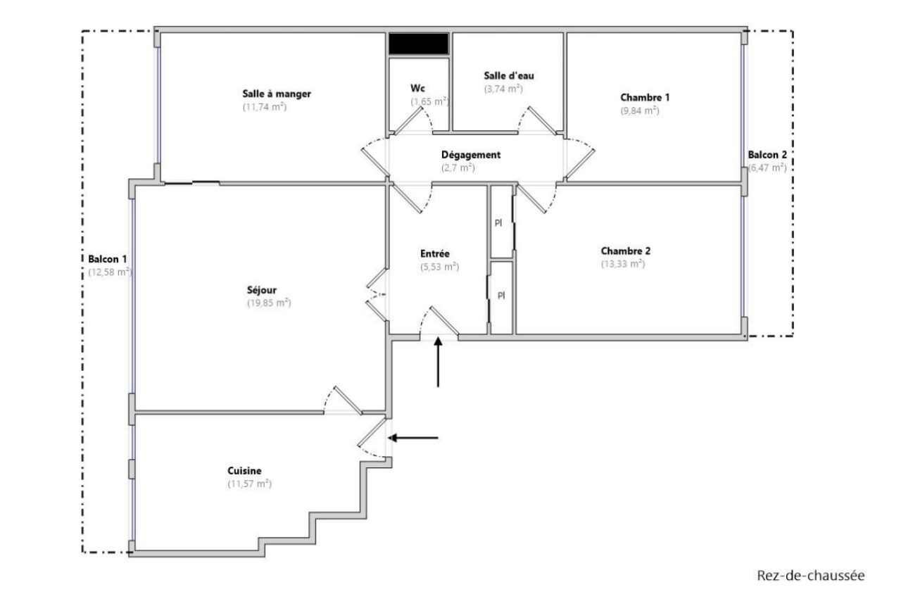
L’Agence de l’Empereur vous présente en exclusivité cet agréable appartement traversant de 80 m2, 4 pièces, 3 chambres, situé dans la recherchée et très appréciée résidence George Sand, avec gardien et ascenseur. Toutes les pièces principales et la cuisine donnent sur les deux balcons de 12,6 m2 et 6,5 m2 qui longent l’appartement des deux côtés, offrant des vues verdoyantes au sein d’un environnement calme. Il se compose d’une entrée avec placard, côté Sud-Est, une cuisine dinatoire de 11,5 m2, un séjour de 20 m2 s’ouvrant en partie sur la salle à manger (ou 3ᵉ chambre) de 11,7 m2, créant ainsi une réception d’environ 32 m2. Côté Nord-Ouest, deux chambres de 9,85 m2 et 13,3 m2 avec placard. Une salle de bain de 3,80 m2 récemment rénovée et des toilettes séparées avec lave-mains. Une grande cave d’environ 13 m2 et une place de parking extérieure attitrée. Double vitrage récent K-Line avec volets électriques. Eau chaude/froide et chauffage collectif par géothermie (inclus dans les charges, 310 € mensuels). Ravalements de façade et balcons effectués en 2024/2025. Récemment : fermeture et sécurisation des accès, réfection du réseau secondaire de chauffage et étanchéité des toits-terrasses. Cette résidence familiale bénéficie d’un environnement calme, de la proximité du centre-ville – on rejoint l’entrée du joli parc de Bois-Préau à 300 m, le nouveau parc du Cardinal à 200 m, Monoprix se trouve à 7 minutes à pied – ainsi que de sa très bonne sectorisation scolaire : école George Sand à deux pas, collège La Malmaison et lycée Richelieu accessibles à pied.
Visite en vidéo 4K : https://www.youtube.com/embed/rbzEx4J1en8?si=TELupUIi9rq4i61X
Honoraires charge: vendeur
TYPE BIEN: Appartement
SURFACE HABITABLE: 79.95 m²
NB ETAGES: 4
PARKING: 1
ANNEE CONSTRUCTION: 1972
TYPE CHAUFFAGE: ENERGIE_CHAUFF_GEOTHERMIE
ENERGIE CHAUFFAGE: GEOTHERMIE
FORMAT CHAUFFAGE: RADIATEUR
WC: 1
SDE: 1
COPROPRIETE: OUI 
NOMBRE DE LOTS: 233
COPROPRIETE QUOTE PART: 3780 €
COPROPRIETE PLAN SAUVEGARDE: 0
VILLE: Rueil malmaison
Ce bien vous intéresse :
Contactez moi




























































