Pièces:
Surface:
Chambres:
3
Salles de bain:
1
L’agence de l’Empereur, vous présente en exclusivité, des murs de commerce plus tout un étage habitable, situé dans un immeuble de caractère, à un endroit stratégique de Rueil-Malmaison, la gare du RER A. L’ensemble immobilier se présente de la façon suivante :
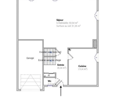
Au rez de chaussée, un bar, café, brasserie avec la cuisine et la salle de préparation, un escalier mène au sous-sol qui dessert, trois réserves, un vestiaire et des commodités plus un local de rangement. Le commerce profite également d’un jardin aménagé en terrasse.
A l’étage, un appartement constitué d’une chambre, cuisine, salle de bains et séjour/salle à manger plus deux autres chambres sur le palier.
Associé au bien vendu, six garages, très recherchés pour leur emplacement à côté de la gare.
Un bien familial depuis plusieurs générations avec un locataire qui exploite depuis des années le commerce.
Les loyers annuels s’élèvent à 50000 €.
La fin du bail actuel est en juin 2026.
Le deuxième étage de l’immeuble est composé de deux appartements avec deux propriétaires différents.
N’hésitez pas à nous contacter pour plus d’informations ou pour organiser une visite.
Honoraires charge: acquéreur – Pourcentage: 5.26 % – Prix net vendeur : 1045000 €
TYPE BIEN: Immeuble
SURFACE HABITABLE: 206 m²
NB ETAGES: 2
PARKING: 1
JARDIN: 0
TERRASSE: 1
SDB: 1
WC: 5
COPROPRIETE: NON 
VILLE: Rueil-Malmaison







































